
Upper Cufaude Farm

350 New Homes at Upper Cufaude Farm
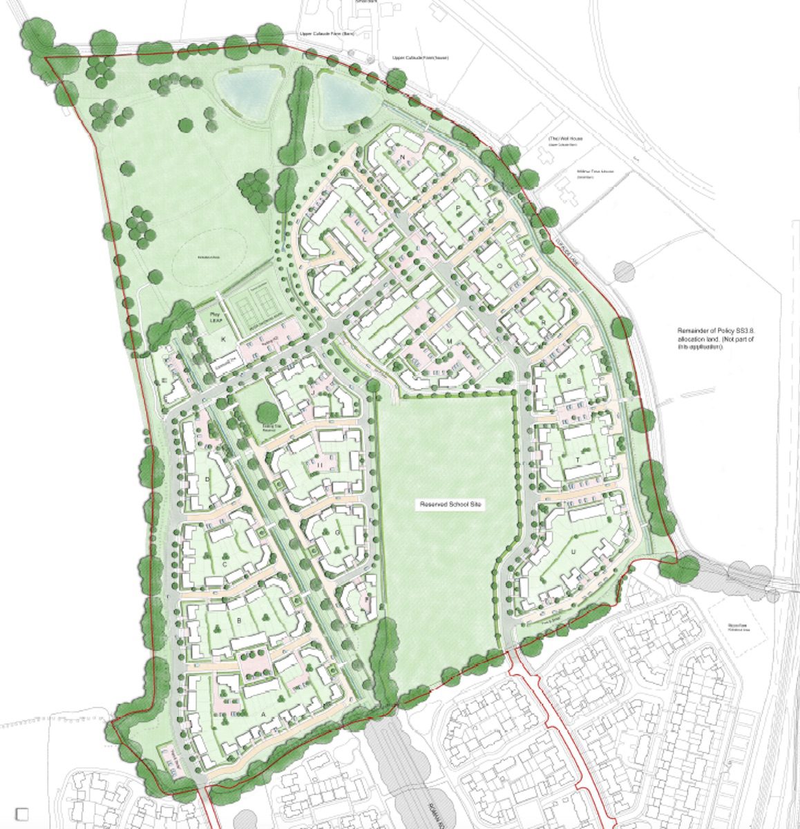
mode supported Croudace Homes in securing outline planning permission for 350 new homes on land at Upper Cufaude Farm, Basingstoke, alongside land safeguarded for a new primary school.
The site presented several transport challenges, requiring detailed negotiations with Hampshire County Council highways officers on access arrangements, trip impacts, and mitigation contributions.

Our Role
mode acted on behalf of Croudace Homes to:
- Prepare transport evidence in support of the planning application.
- Address highways officers’ concerns around trip generation, distribution, and local network impacts.
- Demonstrate the site’s integration with sustainable travel opportunities in the area.
- Negotiate successfully to reduce the requested transport contribution from £1.3m to £120,000, ensuring a proportionate and policy-compliant outcome.
- Assist with securing planning permission as part of a revised full planning application on much of the site, building upon
the outline consent.
Through this work, mode enabled Croudace Homes to bring forward a deliverable, sustainable scheme that balances housing delivery, community infrastructure, and transport network capacity.

Related Services

Transport Planning
We provide tailored transport planning strategies that address access, connectivity, and movement, supporting sustainable, net zero developments and new communities from “vision led” transport planning through to onsite delivery.

Highways & Infrastructure
Our teams deliver practical, efficient highway infrastructure solutions that deliver well engineered and safe road design solutions, whilst providing a clear legible gateway for all users to our client’s new development sites.

Drainage Engineering & Flood Risk Management
We develop compliant, sustainable drainage and flood risk strategies, designed to ensure that surface water is managed sustainably and efficiently and that our solutions integrate seamlessly with our client’s development plans, site requirements and Environmental Agency guidance.
Project Team Members
Our team brings a wealth of knowledge and expertise to each project. We are committed to delivering the highest standard of service for clients.


